Аренда свободного назначения 170 кв.м.

пр-кт Курортный, д. 108/16

476 000 руб.

?

$ 1 086

€ 979

2 800 руб./м²


170 м²

1/16 этажей

Код объекта

129386

Предложение доступно для субагентов, авторизуйтесь

Аренда свободного назначения 170 кв.м.

Код объекта: 129386.
Тип объекта: Помещение свободного назначения.
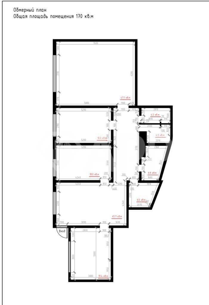
Площадь: 170 м².
Этаж / Этажность: 1 / 16.

Описание и характеристики

Характеристики:
- 1 линия
- Отдельная входная группа
- Общая парковка
- Доступ 24/7
- ХВС/ГВС
- Свой санузел
- Индивидуальное отопление
- Предчистовой ремонт
- Кабинетная планировка
- Жилой дом
- Высота потолков 3.2 м
- Видеонаблюдение
- С окнами
- Коммунальные услуги оплачиваются отдельно
- Предоставление юридического адреса

Дополнительная информация:
Технические характеристики и юридический статус.
- 170 кв. м.
- Юр. статус - нежилые помещения свободного назначения,
- Смешанная открытая планировка,
- Под ремонт. Есть разводка электричества, стяжка полов, установлен газовый котёл,
- 5 мокрых точек,
- Светлое и сухое помещение,
- Первый этаж с отдельным входом,
- Зона разгрузки,
- Витражное остекление,
- Место для рекламы,
- Выделенная мощность - 50 кВт,
- Высота потолков - 3.2м,
- Пониженный тариф на электроэнергию.

Соседство, трафик, логистика:
- Прямой выезд/заезд на Курортный проспект,
- Выезд на транспортную развязку,
- Остановки общественного транспорта (1 мин пешком.),
- Интенсивный пешеходный и автомобильный трафик (напротив Хостинского суда и ФНС, также рядом массивные ЖК и отели премиум класса Актёр Гэлекси, Сан Сити, Королевский Парк, Лазурный, Южное Море, отель Radisson SAS Lazurnaya, Naiman Residence).

Помещение подходит:
- под интернет-магазин
- торговый, медицинский центр
- стоматология
- мини-гостиницу
- образовательное или дошкольное учреждение
- логистический склад
- косметологию, аптеку
- IT компанию
- маркет-плейс
- продовольственный магазин
- идеально под банк

Только длительный договор. Возможно с правом субаренды и регистрации юридического лица.

Продажа также рассматривается.
Звоните или пишите, отвечаю быстро. Оперативный онлайн или офлайн показ.

Перейти в карточку объекта в CRM: 129386.

Мария

+7 905 020-05-73

или оставьте ваш номер, и я перезвоню в течение 30 минут

Отправляя заявку вы соглашаетесь на обработку персональных данных

476 000 руб.

?

$ 6 106

€ 5 254

2 800 руб./м²


170 м²

1/16 этажей

Код объекта

129386

Предложение доступно для субагентов, авторизуйтесь

Мария

+7 905 020-05-73

или оставьте ваш номер, и я перезвоню в течение 30 минут

Отправляя заявку вы соглашаетесь на обработку персональных данных

Похожие объявления

Посмотреть все похожие объявления
1/4
Код объекта: 339247.
Тип объекта: Помещение свободного назначения.
Площадь: 53.9 м².
Этаж / Этажность: -1 / 8.
1/13
Код объекта: 391893.
Тип объекта: Помещение свободного назначения.
Площадь: 170 м².
Этаж / Этажность: 1 / 16.
1/10
Код объекта: 336905.
Тип объекта: Готовый арендный бизнес.
Площадь: 57.1 м².
Этаж / Этажность: 1 / 16.
1/11
Код объекта: 393101.
Тип объекта: Отдельно стоящее здание.
Площадь: 402 м².
Этаж / Этажность: 1 / 2.
1/7
Код объекта: 395110.
Тип объекта: Помещение свободного назначения.
Площадь: 57.2 м².
Этаж / Этажность: -1 / 22.

Не хочу искать, перезвоните мне!

Оставьте номер телефона, наш специалист свяжется с вами и поможет с подбором недвижимости!